給水好幫手:變頻恒壓供水原理圖,變頻器恒壓供水電路圖
供水專家的好幫手:變頻恒壓供水原理圖,變頻器恒壓供水電路圖
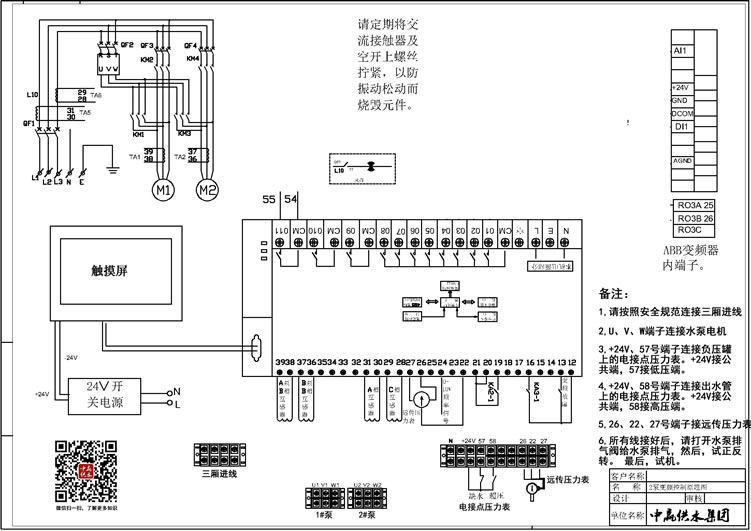
變頻器恒壓供水原理圖/電路圖為便于閱讀與分析控制線路,根據簡單、清晰的原則,變頻器恒壓供水原理圖/電路圖采用電氣元件展開的形式繪制而成。變頻器恒壓供水原理圖/電路圖是用來表明設備電氣的工作原理及各電器元件的作用,相互之間的關系的一種表示方式。 運用電氣原理圖的方法和技巧,對于分析電氣線路,排除機床電路故障是十分有益的。變頻器恒壓供水原理圖/電路圖一般由主電路、控制電路、保護、配電電路等幾部分組成。它包括所有電氣元件的導電部件和接線端點,但并不按電氣元件的實際位置來畫,也不反應電氣元件的形狀、大小和安裝方式。
由于電氣原理圖具有結構簡單、層次分明、適于研究、分析電路的工作原理等優點,所以無論在設計部門還是生產現場都得到了廣泛應用。
中贏變頻器恒壓供水設備特點
1、 節電:優化的節能控制軟件,使水泵實現限度地節能運行;
2、 節水:根據實際用水情況設定管網壓力,自動控制水泵出水量,減少了水的跑、漏現象;
3、 運行可靠:由變頻器實現泵的軟起動,使水泵實現由工頻到變頻的無沖擊切換,防止管網沖擊、避免管網壓力超限,管道破裂。
4、 聯網功能:采用全中文工控組態軟件,實時監控各個站點,如電機的電壓、電流、工作頻率、管網壓力及流量等。并且能夠累積每個站點的用電量,累積每臺泵的出水量,同時提供各種形式的打印報表,以便分析統計。
5、 控制靈活:分段供水,定時供水,手動選擇工作方式。
6、 自我保護功能完善:如某臺泵出現故障,主動向上位機發出報警信息,同時啟動備用泵,以維持供水平衡。萬一自控系統出現故障,用戶可以直接操作手動系統,以保護供水。
變頻器恒壓供水設備應用范圍
1、 自來水廠、加壓泵房
2、 居民生活區、賓館及其它建筑
3、 企業生產用水
4、鍋爐循環水系統
5、 農田灌溉系統
- 上一篇:家里自來水壓力小怎么辦?有什么辦法可以解決呢? 2018/4/20
- 下一篇:揚州綠都環境工程設備有限公司采購水箱+恒壓供水設備 2018/3/1


